「家」生活的容器
心靈的棲息地
賦予日常起居和諧的溫暖
與舒適的高貴質感
讓藝術在生活里彌漫
共同開啟一段
不動聲色的品味之旅

享受生活,卸下煩惱,彼此相互陪伴,溫馨且從容。
今天所要分享案例的業主,是一對已退休的夫妻,女兒在外工作,所以,這個家,對他們來說,是兩人一起享受的地方,也是每年與女兒團圓的地方。
簡單、收納功能強、整體空間協調是業主的訴求。
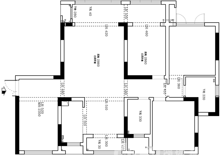
原始結構VS平面布置

▲原始結構圖
關于原始結構
1、陽臺與客廳相隔,光線無法進入室內,空間昏暗;
2、廚房與餐廳空間不連通,面積較小,采光不足,環境潮濕,日常的烹飪清潔不方便;
3、空間規劃不明確,儲物空間不足,其次入戶門正對衛生間。

▲平面布置圖
設計改造方案
1、將客廳與陽臺打通,從而引進更多的光線,明亮整個空間,讓空間更加舒適通透;
2、拆除廚房餐廳多余的隔墻,形成一個開放的空間與客廳聯通,動線流暢,空間更加開闊明亮,方便日常清潔與烹飪;
3、重新規劃空間功能,主臥進門位置往內移,解決進門直對衛生間的不便,同時定制儲物柜增加儲物空間,讓收納更強勁。

一門到頂的定制鞋柜,白色的漆面與墻面相融,整個鞋柜在空間中毫不突兀,完美貼合設計。
柜體中間留空便于日常包包鑰匙的放置,柜底用于臨時鞋子的收納,定制的小矮柜不僅可以用于收納,還能充當生活中換鞋時的小板凳,一柜多用,不要太厲害。
白色為主基調的空間,整體簡約且自然,黑色仿大理石地磚所帶來的格調,打造出一種高級時尚的質感。
無主燈的設計,呈現一種利索的狀態,柔和的燈光照在身上,瞬間放下全身疲憊。

木質沙發背景墻,天然帶著一股厚重與溫暖,多種材料的結合,創造一個多層次的空間。
皮質座椅、北歐旋轉沙發、極簡的茶幾、時尚抽象裝飾畫,每一件家具的選擇,都無不配合著房屋整體的設計,讓家更加整體,同時無聲地詮釋著業主的高品位。

開放式的餐廳,風格繼續延續客廳的風格,圍合式的臺面增加操作面積,一抹輕快的藍色穿插于空間之中,如同一條星河貫穿于星空般,讓人舒適。
減去內心的躁動,卸下身上的疲倦,享受食物所帶來的味覺、嗅覺的美妙感。

量身定制的窄邊收口白色衣柜透露著細節所帶來的精致感,整個臥室通過不同層次的顏色和材質的肌理營造一股靜謐氛圍。
簡輕的布局,減輕視覺負擔,讓睡眠更加寧靜且精致。
長沙 「切換」











